🙅‍♂️🏗 Жители Владивостока остановили строительство многоэтажек у ТЦ...

15 ч. назад

5

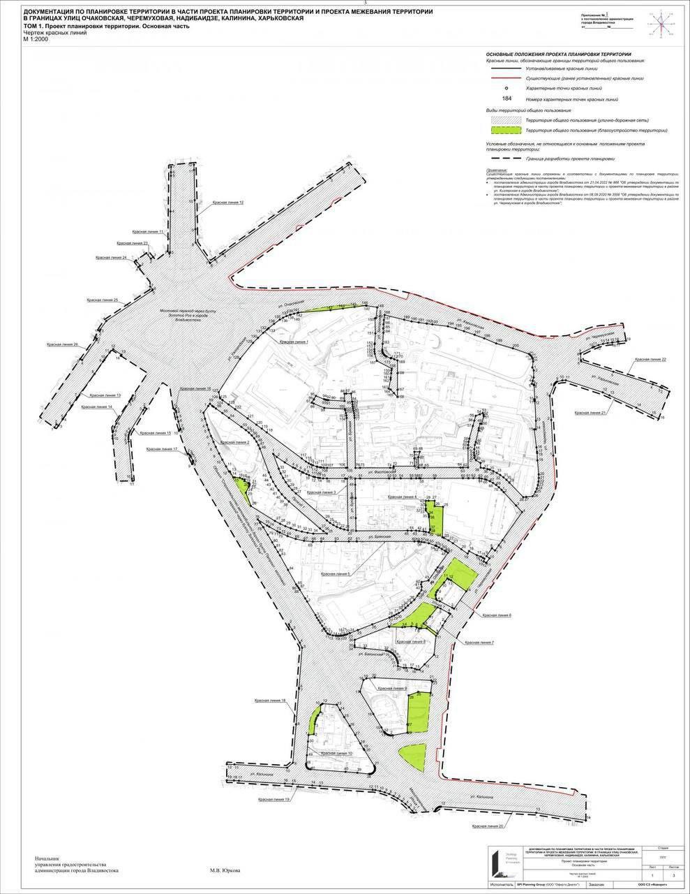
🙅‍♂️🏗 Жители Владивостока остановили строительство многоэтажек у ТЦ «Черёмушки» — проект отправлен на доработку

Власти Владивостока отказались от утверждения спорного проекта планировки района у ТЦ «Черёмушки». Документ предполагал застройку Чуркина домами до 30 этажей, строительством школы, детсада, храмов, ТЦ и паркингов. Однако большинство участников общественных обсуждений — 135 человек из 195 — высказались против.

Мэр Константин Шестаков подписал постановление об отклонении ППТ и возвращении его разработчикам на доработку.

Подпишись - ЧП Владивосток | Приморский край

💬 Написать нам

Еще новости:

🗣В Артёме инспекторы ДПС «за шиворот» поймали мотоциклиста, который пытался...

ЧП Владивосток

🗣В Артёме инспекторы ДПС «за шиворот» поймали мотоциклиста, который пытался...

🗣В Артёме инспекторы ДПС «за шиворот» поймали мотоциклиста, который пытался от них удрать Нам пишут, что в Артёме днем молодой человек на мотоцикле пытался удрать от сотрудников ДПС, но те его настигли. Во время задержания т... Читать далее >>

3 ч. назад 5
🚨Мопедист на Баляева заехал прямо под автобус. Момент ДТП попал на камеру. 🌇...

ЧП Владивосток

🚨Мопедист на Баляева заехал прямо под автобус. Момент ДТП попал на камеру. 🌇...

🚨Мопедист на Баляева заехал прямо под автобус. Момент ДТП попал на камеру. Подпишись - ЧП Владивосток | Приморский край... Читать далее >>

4 ч. назад 5
Сельские школы Приморья остаются без учителей-предметников из-за низких зарплат

ЧП Владивосток

Сельские школы Приморья остаются без учителей-предметников из-за низких зарплат

В сельских школах Приморского края наблюдается острая нехватка учителей-предметников. В школе №256 города Фокино в 2024/2025 учебном году у одиннадцатиклассников не преподавали химию, биологию и обществознание, выставляя фиктивные оценки.В школе №13 села Многоудобное отсутствует учитель ма... Читать далее >>

5 ч. назад 3
🗣В Приморье полицейские задержали браконьера, который убил и расчленил...

ЧП Владивосток

🗣В Приморье полицейские задержали браконьера, который убил и расчленил...

🗣В Приморье полицейские задержали браконьера, который убил и расчленил краснокнижного амурского тиграРанее сотрудники ГАИ по Надеждинскому району в ходе проверочных мероприятий остановили автомобиль. При осмотре ... Читать далее >>

6 ч. назад 6
❗️Подростки на мопеде влетели в автомобиль ночью во Владивостоке

ЧП Владивосток

❗️Подростки на мопеде влетели в автомобиль ночью во Владивостоке

На Луговой двое 15-летних подростков на мопеде Suzuki Sepia столкнулись с Toyota Corolla Axio. Мопедисты ехали по улице Светланской по встречке и выехали на Луговую, где произошла фронтальная авария, сообщает полиция.Оба подростка получили травмы и были госпитализированы. В полиции добавил... Читать далее >>

7 ч. назад 6
🗣Во Владивостоке на Комарова детишки регулярно обчищают продуктовые магазины...

ЧП Владивосток

🗣Во Владивостоке на Комарова детишки регулярно обчищают продуктовые магазины...

🗣Во Владивостоке на Комарова детишки регулярно обчищают продуктовые магазины и остаются безнаказаннымиНам пишут, что на прапорщика Комарова малолетки регулярно приходят в магазин, чтобы своровать оттуда товар, а затем скрываются. Э... Читать далее >>

8 ч. назад 5
❗️Автомобиль врезался в опору ЛЭП в Находке, погиб мужчина

ЧП Владивосток

❗️Автомобиль врезался в опору ЛЭП в Находке, погиб мужчина

В 03:30 полиция и медики приехали на место аварии, которая произошла на улице Шевченко.22‑летний водитель Subaru Forester потерял управление, съехал с дороги и врезался в опору линии электропередач, сообщает полиция Приморья. От полученных травм погиб 35‑летний пассажир. Водитель нах... Читать далее >>

9 ч. назад 4
🥶В Приморье в понедельник, 6 октября, будет резкое похолодание — температуры упадут сразу на 9 градусов

ЧП Владивосток

🥶В Приморье в понедельник, 6 октября, будет резкое похолодание — температуры упадут сразу на 9 градусов

В субботу, 4 октября, континентальные районы Приморья окажутся в тёплом секторе хабаровского циклона, прибрежные — под влиянием гребня тихоокеанского антициклона. Осадков не ожидается. Ночь не холодная, +5…+13 °C, на южном побережье +14…+17 °C. Днём в континентальных районах по-летнему... Читать далее >>

10 ч. назад 5
🗣На трассе Хабаровск —Владивосток ночью грузовик столкнулся с Toyota Celica — погибли 2 молодых парня, авто превратился в груду металла

ЧП Владивосток

🗣На трассе Хабаровск —Владивосток ночью грузовик столкнулся с Toyota Celica — погибли 2 молодых парня, авто превратился в груду металла

ДТП произошло в районе имени Лазо Хабаровского края, приблизительно в 00:30, на 79 км федеральной автомобильной дороги А-370 «Уссури». Столкнулись грузовик марки MAN и Toyota Celica.Грузовик MAN двигался со стороны Хабаровска в сторону Владивостока. При совершении поворота нале... Читать далее >>

11 ч. назад 17
❗️Администрация Владивостока  санкционировала взрыв на улице Капитана Шефнера?

ЧП Владивосток

❗️Администрация Владивостока санкционировала взрыв на улице Капитана Шефнера?

Видео сгенерировано нейросетью в сатирических целях.Источник: neyronkaVDK Подпишись - ЧП Владивосток | Приморский край... Читать далее >>

12 ч. назад 5
Еще